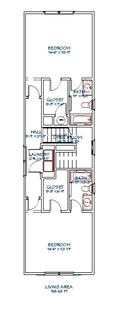
Pecan floorplan

Featuring 1,605 square feet of living space, this two story home has a unique two master bedroom layout. Both bedrooms are on the second floor and have en suite bathrooms and walk-in closets. A state-of-the-art kitchen and open-concept living and dining area are located on the main level.


CHECK OUT THE WALK-THROUGH!

Previous
Previous

Maple floorplan